- Properties
- Meet our agents
-
Communities
- Fort Lauderdale
- Miami
- Boca Raton and Delray Beach
- Golden Beach: A Secluded Coastal Gem with Unmatched Luxury
- The Palm Beaches
- Commercial Real Estate
- Croissant Park
- Tarpon River
- Rio Vista
- Las Olas Isles
- Victoria Park
- Riverside Park
- Sailboat Bend
- Idlewyld
- Harbour Inlet and Harbour Isles
- Edgewood
- River Oaks
- Coral Ridge
- Market Report
- Home Value
Property
Beds
4
Full Baths
2
1/2 Baths
1
Year Built
1995
Sq.Footage
2,133
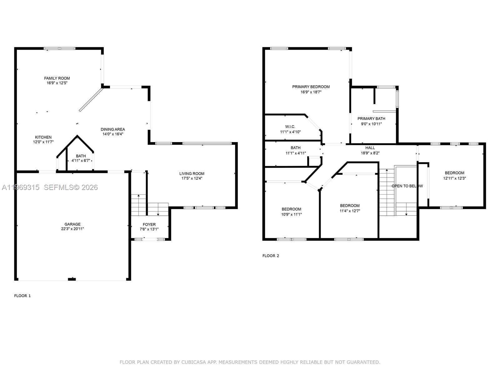
MASSIVE TWO-STORY LAKE HOUSE WITH THE BEST LAKE VIEW IN ALL THE DEVELOPMENT. Sitting on an spacious 8,624sq ft lot, it features the second-largest lot on the lake. With unobstructed views, its perfectly positioned to capture the stunning full moon reflection on the water from the master suite balcony while feeling the lake breeze. Inside, enjoy a spacious floor plan with 4 bedrooms, a screened terrace, a master suite balcony, impact windows/doors, a renovated kitchen, two-car garage, and Paid-off solar panels that will power the house. FEATURES: Perimeter fence (2022) Paid-off solar panels with charging power cell(2021) New washer & dryer, 5-ton AC unit (2009) Remodeled kitchen Screened patio Master suite balcony Full alarm system. This Is Waterfront Living
Features & Amenities
Interior
-
Other Interior Features
Bidet, Pantry, Walk-In Closet(s)
-
Total Bedrooms
4
-
Bathrooms
2
-
1/2 Bathrooms
1
-
Cooling YN
YES
-
Cooling
Central Air
-
Heating YN
YES
-
Heating
Central
-
Pet friendly
N/A
Exterior
-
Garage
Yes
-
Garage spaces
2
-
Construction Materials
Block
-
Other Exterior Features
Balcony
-
Parking
Attached, Driveway, Garage
-
Pool
Yes
-
Pool Features
None
-
Waterfront YN
YES
-
View
Lake
Area & Lot
-
Lot Features
Waterfront
-
Property Type
Residential
-
Property Sub Type
Single Family Residence
-
Architectural Style
TwoStory
Price
-
Sales Price
$775,000
-
Tax Amount
$10,099
-
Zoning
9400
-
Sq. Footage
2, 133
-
Price/SqFt
$363
HOA
-
Association
Yes
-
Association Fee
$110
-
Association Fee Frequency
Monthly
-
Association Fee Includes
N/A
School District
-
Elementary School
Roberts; Jane S.
-
Middle School
Curry; Lamar Louise
-
High School
Ferguson John
Property Features
-
Stories
2
-
Senior Community YN
NO
-
Sewer
Public Sewer
-
Water Source
Public
Schedule a Showing
Showing scheduled successfully.
Mortgage calculator
Estimate your monthly mortgage payment, including the principal and interest, property taxes, and HOA. Adjust the values to generate a more accurate rate.
Your payment
Principal and Interest:
$
Property taxes:
$
HOA fees:
$
Total loan payment:
$
Total interest amount:
$
Location
County
Miami-Dade
Elementary School
Roberts; Jane S.
Middle School
Curry; Lamar Louise
High School
Ferguson John
Listing Courtesy of Jose Vilar , EXP Realty LLC
RealHub Information is provided exclusively for consumers' personal, non-commercial use, and it may not be used for any purpose other than to identify prospective properties consumers may be interested in purchasing. All information deemed reliable but not guaranteed and should be independently verified. All properties are subject to prior sale, change or withdrawal. RealHub website owner shall not be responsible for any typographical errors, misinformation, misprints and shall be held totally harmless.
AGENT
David Jean-Louis
Call David today to schedule a private showing.
* Listings on this website come from the FMLS IDX Compilation and may be held by brokerage firms other than the owner of this website. The listing brokerage is identified in any listing details. Information is deemed reliable but is not guaranteed. If you believe any FMLS listing contains material that infringes your copyrighted work please click here to review our DMCA policy and learn how to submit a takedown request.© 2024 FMLS.