Features & Amenities

Interior

  • Other Interior Features

    Eat-in Kitchen, Master Downstairs

  • Total Bedrooms

    5

  • Bathrooms

    2

  • 1/2 Bathrooms

    1

  • Cooling YN

    YES

  • Cooling

    Central Air, Ceiling Fan(s)

  • Heating YN

    YES

  • Heating

    Central, Electric

  • Pet friendly

    Yes

Exterior

  • Garage

    Yes

  • Garage spaces

    2

  • Construction Materials

    Block

  • Other Exterior Features

    Lighting

  • Parking

    Circular Driveway, Garage Door Opener

  • Patio and Porch Features

    Patio, Porch, Screened

  • Pool

    Yes

  • Pool Features

    In Ground

  • Waterfront YN

    NO

  • View

    Garden

Area & Lot

  • Property Type

    Residential

  • Property Sub Type

    Single Family Residence

  • Architectural Style

    OneStory

Price

  • Sales Price

    $1,235,000

  • Tax Amount

    $17,612

  • Zoning

    R-3

  • Sq. Footage

    2, 473

  • Price/SqFt

    $499

HOA

  • Association

    Yes

  • Association Fee

    $655

  • Association Fee Frequency

    Quarterly

  • Association Fee Includes

    N/A

School District

  • Elementary School

    Manatee Bay

  • Middle School

    Falcon Cove

  • High School

    Cypress Bay

Property Features

  • Stories

    1

  • Association Amenities

    Maintenance

  • Senior Community YN

    NO

  • Sewer

    Public Sewer

  • Water Source

    Public

Schedule a Showing

Showing scheduled successfully.

<
>
IN PERSON
VIA CHAT

What is 3 + 4 ?


Change time

Mortgage calculator

Estimate your monthly mortgage payment, including the principal and interest, property taxes, and HOA. Adjust the values to generate a more accurate rate.

Your payment

Principal and Interest:

$

Property taxes:

$

HOA fees:

$

Total loan payment:

$

Total interest amount:

$

Location

County

Broward

Elementary School

Manatee Bay

Middle School

Falcon Cove

High School

Cypress Bay

Listing Courtesy of Rocio De La Quintana , United Realty Group Inc.

RealHub Information is provided exclusively for consumers' personal, non-commercial use, and it may not be used for any purpose other than to identify prospective properties consumers may be interested in purchasing. All information deemed reliable but not guaranteed and should be independently verified. All properties are subject to prior sale, change or withdrawal. RealHub website owner shall not be responsible for any typographical errors, misinformation, misprints and shall be held totally harmless.

Agent David  Jean-Louis

AGENT

David Jean-Louis

Call David today to schedule a private showing.


* Listings on this website come from the FMLS IDX Compilation and may be held by brokerage firms other than the owner of this website. The listing brokerage is identified in any listing details. Information is deemed reliable but is not guaranteed. If you believe any FMLS listing contains material that infringes your copyrighted work please click here to review our DMCA policy and learn how to submit a takedown request.© 2024 FMLS.
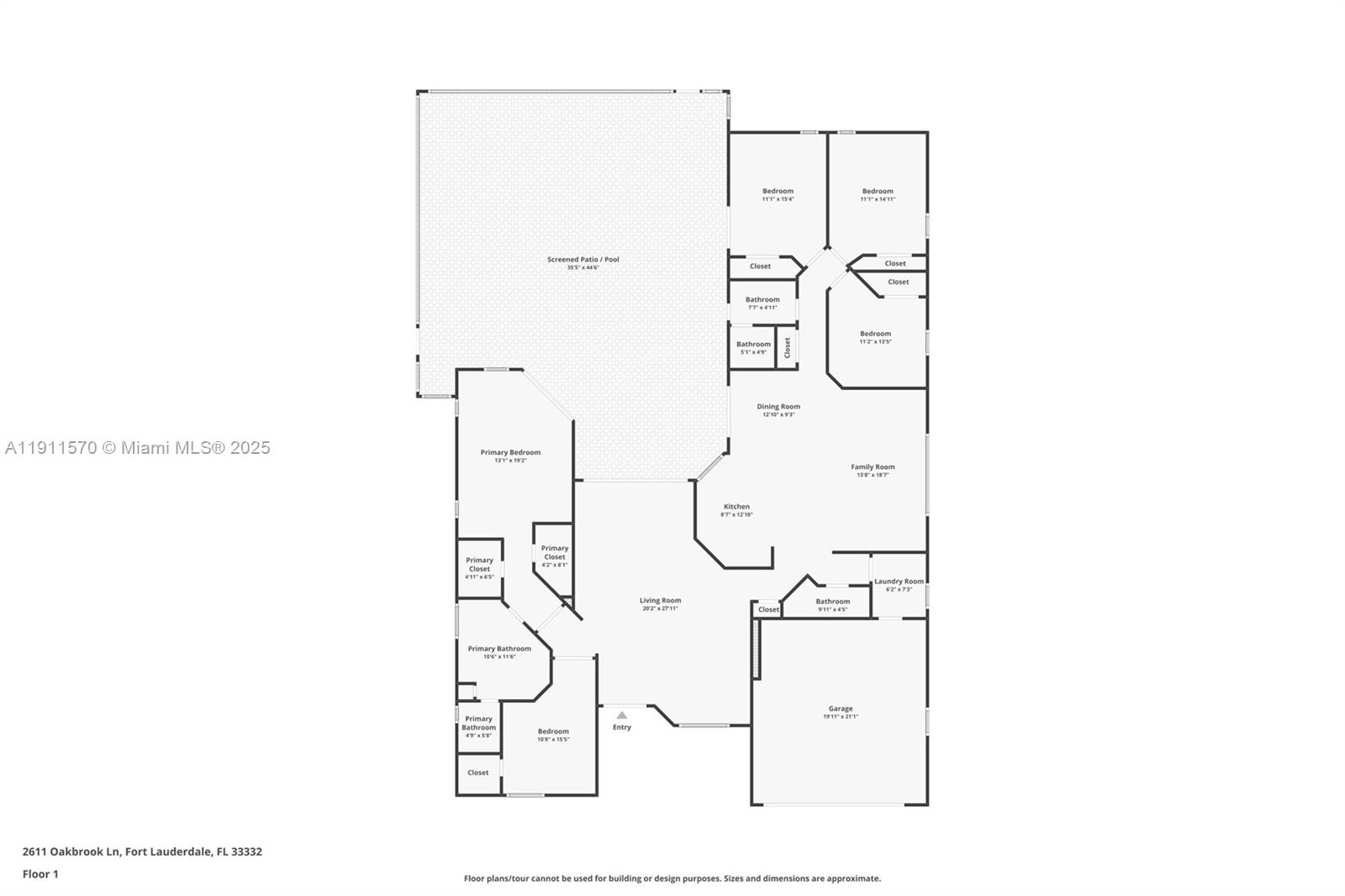
Amazing One Story House Located in Luxury Gated Golf Community “WESTON HILLS COUNTRY CLUB” bright & spacious Remodeled 5 Bedroom/3 baths, New Stainless Steel Appliances, Quartz Counter tops, Brand new Cabinets, The primary suite offers two walk-in closets, and bathroom with dual sinks, view to the pool, Formal dining, Formal living room, Accordion shutters, 2014 roof, brand new water heater,  A+ rated schools, shops and restaurants at the Weston town Center, easy access to I-75 and 595. 20 minutes from Fort Lauderdale Hollywood International Airport, VERY EASY TO SHOW!!!!

2611 Oakbrook Ln

Message successfully sent.

What would you like to know?

What is 3 + 4 ?

Related Properties

A comfortable single-story house. This cozy, 3-bed, 2.5-bath single-family home is located in the exclusive and peaceful BONAVENTURE LAKES area (NO HOPA) on a cul-de-sac. The property features a private screened-in pool with a lake view, as well as an exclusive patio area where you can plant fruit trees or undertake a project to enjoy with your family. You can also enjoy the pool view and sunset from anywhere in the house. This property includes the  Bonaventure Town Center membership for only $385 a year, with access to a gym, pool, tennis court, indoor basketball, pickleball, and racquetball courts, mini golf, and more. Close to major highways, A+ rated schools, shopping, parks, and the FLL International Airport. The studio can be converted into a 4th bedroom.
#A11983133

Weston

16623 Waters Edge Dr

3 Beds

2 Baths

2,440 Sq.Ft.

$1,000,000

MLS#: A11983133

Beautiful one-story corner residence offering 4 bedrooms and 2.5 bathrooms, filled with abundant natural light and thoughtfully designed spacious living areas that create an inviting and elegant atmosphere.

The chef’s kitchen is the heart of the home, featuring custom-built cabinetry, a large island, double sink, two ovens, and an oversized double pantry, perfect for both everyday living and entertaining. Major appliances including the washer, dryer, microwave, and refrigerator are 2 years old or newer, adding modern convenience and value.

This well-maintained property also includes accordion hurricane shutters, providing peace of mind and storm protection.

Located in one of Weston’s most desirable communities, residents enjoy top-rated schools and access to one of the finest clubhouses in all of Weston, offering exceptional amenities and an outstanding lifestyle.
#A11976915

Weston

1435 Cardinal Way

4 Beds

2 Baths

2,674 Sq.Ft.

$999,999

MLS#: A11976915

Perfectly placed within the highly sought after Fairways of Weston Hills Country Club, this beautifully appointed residence captures sweeping golf course views and the relaxed elegance of South Florida living. Offering 3 bedrooms, 3 full baths, and 3,150 square feet under air, the home features soaring ceilings, spacious living areas, and a light filled open layout designed for both comfort and entertaining. At the heart of the home, the remodeled kitchen showcases modern finishes and overlooks the main living spaces, creating a natural gathering place for family and guests alike. The primary suite serves as a private retreat, complete with two oversized walk-in closets and a generously sized bath designed for everyday comfort. Step outside to your private pool and tranquil patio, where wide golf course vistas create a beautiful setting for quiet mornings, relaxing afternoons, or  evenings spent entertaining under the South Florida sky. Residents enjoy a low-maintenance lifestyle, with HOA services that include lawn/landscape maintenance, sprinkler maintenance, 6 year exterior house painting, and sidewalk pressure cleaning. Homes within The Fairways are rarely available, making this a wonderful opportunity to own in one of Weston Hills Country Club’s most desirable communities. Professional photos coming soon!!!
#A11976519

Weston

2719 Pinehurst

3 Beds

3 Baths

3,150 Sq.Ft.

$1,399,000

MLS#: A11976519

Welcome to Orchid Island in Weston! Offering 4 Bedrooms / 2.5 Bathrooms, 2,612 SQFT home.  The community is gated , served by top-rated “A” schools and offers amenities including tennis courts, a half basketball court, and a children’s playground—perfect for both relaxation and an active lifestyle.  Enjoy nearby parks, shopping, houses of worship, and great dining.
#A11977210

Weston

966 SPOONBILL CIR

4 Beds

2 Baths

N/A

$1,150,000

MLS#: A11977210

Here is your opportunity to live on the most coveted water views Weston has to offer. Located in the highly sought after gated community, The Meadows. From the moment you step foot into this beautiful 4 bed, 2.5 bath home, you will be mesmerized by the breathtaking lake view. Fall in love with the vast living space, volume ceilings, and beautiful flooring (2020). Complete impact windows and doors (2024) provide plenty of natural light to brighten the home. Entertain with ease in a modernized kitchen with new 2025 appliances while overlooking the lake from the family room or breakfast nook! The oversized primary bedroom boasts a large custom walk-in closet and a luxurious spa-like bathroom. All bedrooms feature custom closets and all bathrooms renovated (2025). From experiencing the sunrise with your morning cup of coffee to hosting guests for lunch or dinner on the patio (re-screened March 2026), relish in the fresh breeze and serene water view. Enjoy the convenience of a dedicated laundry room. 2-car garage with ample storage space. Various community amenities including a pool, basketball and pickleball courts, and a playground. Please note these photos are not AI-generated, this home is actually just as beautiful, if not more, in person!
#A11977048

Weston

1150 Fairfield Meadows Dr

4 Beds

2 Baths

2,115 Sq.Ft.

$1,050,000

MLS#: A11977048

Live on permanent vacation! This spectacular recently remodeled contemporary home features an amazing backyard with pool, lake view and outdoor kitchen, perfect for entertaining family and friends. Enjoy 5 bedrooms and 3 bathrooms. One of the bedrooms is located downstairs and perfect to be used as a guest room, playroom, office, den, or gym. Enjoy the modern luxury of this amazing home with porcelain on the first floor and laminate grey on the second floor. Beautiful kitchen Quartz countertop, modern and ultimate technology new appliances. New contemporary stair rails and wine cellar to display your most exclusive bottles. Conveniently located close to schools, shopping areas, restaurants, parks and more.
#A11975653

Weston

1176 Cedar Falls Dr

5 Beds

3 Baths

2,482 Sq.Ft.

$1,150,000

MLS#: A11975653

Price reduced
IMMACULATE HOME. IMPORTED ITALIAN KITCHEN-MIXED WOOD & GLASS, ADVANCED STORAGE SOLUTIONS WITH WINE COOLER. LIGHT AND BRIGHT FORMAL DINNING ROOM. SEPARATE IN-LAW AREA ON THE 1ST FLOOR WITH DIRECT EXIT TO THE GARAGE. WASHER & DRYER UPSTAIRS. TRAVERTINE MARBLE 18X18 DIAGONAL ON THE FIRST FLOOR, S/S APPLIANCES. READY SUROUND SOUND WIRE. PRIVATE, FANCED AND LANDSCAED BACKYARD. ON THE CUL-DE-SAC 1st Month and 2 security deposit to move in, must have a minimum credit score of 690 and go through a tenant evaluation, This process has a fee of $150 per couple and/or every person that is 18+ that will live there.
#A11976219

Weston

4160 Cascade Ter

5 Beds

4 Baths

3,041 Sq.Ft.

$1,210,000

MLS#: A11976219

Discover resort-style living at its finest in the highly coveted Weston Hills community, renowned for its two championship Robert Trent Jones, Jr. golf courses, private country club, tennis courts, fitness center, aquatics, and vibrant social scene – the ultimate South Florida lifestyle with top-rated schools.
This magnificent one-story 5-bedroom, 3.5-bathroom residence welcomes you with elegance and thoughtful design. Step inside to soaring high ceilings, a desirable split floor plan for maximum privacy, and an abundance of natural light that flows through every room. The circular driveway adds instant curb appeal and effortless arrival.
Outside, your private paradise awaits: a sparkling pool glistens under the Florida sun, ready for your first refreshing dip or sunset cocktails. The covered patio is perfect for year-round entertaining.
A spacious 2-car garage offering plenty of room for vehicles, golf clubs, and extra storage. Recent updates make this home move-in ready: 2 Newer AC units and a new water heater to ensure comfort and peace of mind for years to come.
Weston Hills isn't just a neighborhood—it's a premier destination for families and golf enthusiasts seeking sophistication, security, and endless recreation.
#A11975661

Weston

2458 Greenbrier Ct

5 Beds

3 Baths

3,340 Sq.Ft.

$1,395,000

MLS#: A11975661

Welcome to your renovated retreat in the highly sought-after The Lakes community of Weston. Our Boho Chic Lakeside Retreat. This beautifully upgraded 4-bedroom, 2.5-bathroom home offers approximately 2,730 square feet of thoughtfully designed living space, blending comfort, style, and everyday functionality. New York Bricks on the main entrance and Patio.
From the moment you enter, you’re greeted by bright, open living areas filled with natural light and refined modern finishes. The redesigned kitchen showcases contemporary cabinetry, quality countertops, updated appliances, a double oven, a warmer, and an upgraded Thermador refrigerator flowing seamlessly into the main living spaces, perfect for both everyday living and elegant entertaining.
The spacious primary suite offers a peaceful private escape, complete with an upgraded bath, generous closet space, and a versatile seating area ideal for a home office or an additional custom closet. Hardwood flooring on stair case and second floor.
Step outside to a serene backyard retreat featuring a pool, jacuzzi, covered patio, and spectacular lake views with a tranquil walking path perfect for relaxing or hosting gatherings.
Situated on a quiet, mature tree-lined street, residents of The Lakes enjoy access to top-rated Weston schools, parks, shopping, dining, and convenient highway access. This is a true move-in-ready opportunity in one of Weston’s most desirable communities, offering exceptional lifestyle and long-term value.
#A11973933

Weston

362 Lake Crest Ct

4 Beds

2 Baths

2,730 Sq.Ft.

$1,199,000

MLS#: A11973933

This beautifully updated 5-bedroom, 3-bath residence offers an ideal layout with the highly sought-after primary suite conveniently located on the first floor. Designed for both comfort and functionality, the home provides generous living spaces, perfect for everyday living and entertaining alike. Step inside and immediately notice the new flooring throughout and the bright, open feel enhanced by natural light. The modern kitchen integrates seamlessly with the main living areas, while the renovated bathrooms feature clean, contemporary finishes and thoughtful upgrades. Enjoy true South Florida living in your private backyard oasis. The sparkling pool overlooks a serene lake view, creating the perfect backdrop for relaxing evenings and weekend gatherings. Major improvements include a newer roof (Dec 2016), newer A/C system (2021), full impact windows throughout (2026) for security and efficiency, and a freshly painted exterior (2026) that enhances curb appeal and gives the home a crisp, move-in-ready feel. Located in a desirable gated community with access to top-rated schools, parks, shopping, and dining, this property offers the complete package of style, location, and peace of mind.
#A11956755

Weston

637 Lake Blvd

5 Beds

3 Baths

2,748 Sq.Ft.

$1,249,000

MLS#: A11956755

 - property

Send a message

Message successfully sent.

Your message

What is 3 + 4 ?

Reason for contacting?

Sign Out

Virtual Assistant

Would you like to take the next step with this property? We can help you schedule a showing or virtual tour, or send you more details.

Yes, I would like more information.

Thank You for Your Reply, One of Our Agents will contact you as soon as possible

No, maybe later.

Thank you, you can always contact me via email, phone number or through the contact form.

Realhub AI

Lucy - Your AI-Powered Realtor

Update Your Temporary Password

Personalize your search

Enter your email and we'll notify you immediately when new listings match what you're looking for.

or enter email address

Already have an account ? Login here

Continue your home search

Already have an account ? Login here

We use cookies

We use cookies primarily for analytics to enhance your experience. By accepting, you agree to our use of these cookies. You can manage your preferences or learn more about our cookies policy.