- Properties
- Meet our team
-
Communities
- Fort Lauderdale
- Miami
- Boca Raton and Delray Beach
- Golden Beach: A Secluded Coastal Gem with Unmatched Luxury
- The Palm Beaches
- Commercial Real Estate
- Croissant Park
- Tarpon River
- Rio Vista
- Las Olas Isles
- Victoria Park
- Riverside Park
- Sailboat Bend
- Idlewyld
- Harbour Inlet and Harbour Isles
- Edgewood
- River Oaks
- Coral Ridge
- Market Report
- Home Value
Property
Beds
None
Full Baths
None
1/2 Baths
None
Year Built
1973
Sq.Footage
N/A
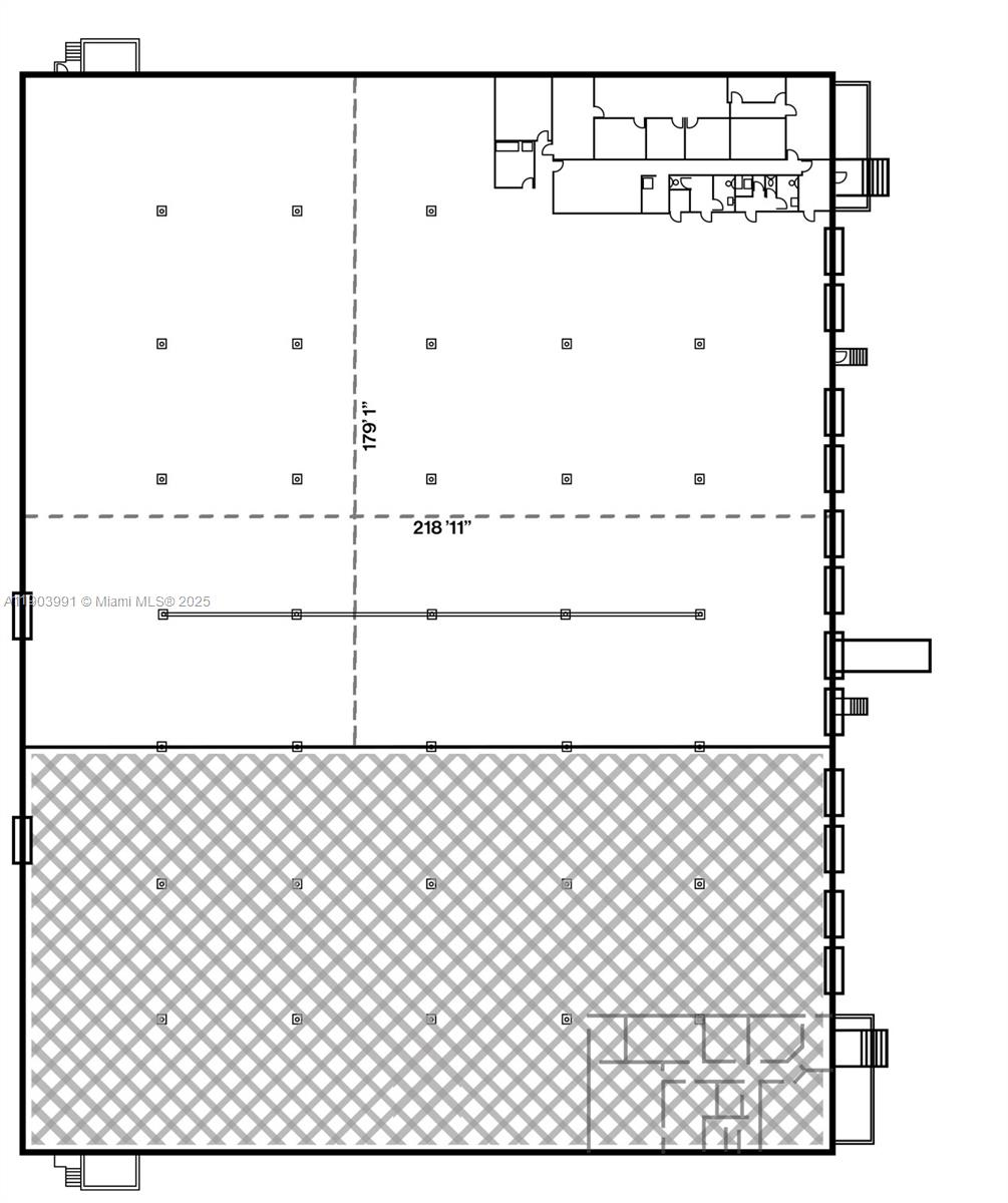
Located in the Sunshine State Industrial Park, this ±39,000 SF warehouse (±36,200 SF warehouse + ±2,800 SF office) offers modern functionality and unbeatable logistics access. With 22-foot clear height, heavy 3-phase power, 8 dock-height doors, and a secure fenced lot, this property is ideal for distribution, manufacturing, or logistics operations. The property offers immediate access to the Golden Glades Interchange, connecting SR-826 (Palmetto Expressway), Florida’s Turnpike, and I-95 — providing direct routes to Port of Miami, Miami International Airport, and key South Florida markets. Available May 1, 2026, with the sublease running through May 1, 2030 $14.00/SF Gross.
Features & Amenities
Interior
-
Total Bedrooms
N/A
-
Bathrooms
N/A
-
Pet friendly
N/A
Exterior
-
Garage
No
-
Pool
No
Area & Lot
-
Property Type
Commercial Lease
-
Property Sub Type
Industrial
Price
-
Sales Price
$14
-
Tax Amount
154958.0
-
Zoning
7100
-
Sq. Footage
N/A
-
Price/SqFt
N/A
HOA
-
Association
No
School District
-
Elementary School
N/A
-
Middle School
N/A
-
High School
N/A
Schedule a Showing
Showing scheduled successfully.
Mortgage calculator
Estimate your monthly mortgage payment, including the principal and interest, property taxes, and HOA. Adjust the values to generate a more accurate rate.
Your payment
Principal and Interest:
$
Property taxes:
$
HOA fees:
$
Total loan payment:
$
Total interest amount:
$
Location
County
Miami-Dade
Elementary School
Middle School
High School
Listing Courtesy of Tommy Gil , Industrial Advisors
RealHub Information is provided exclusively for consumers' personal, non-commercial use, and it may not be used for any purpose other than to identify prospective properties consumers may be interested in purchasing. All information deemed reliable but not guaranteed and should be independently verified. All properties are subject to prior sale, change or withdrawal. RealHub website owner shall not be responsible for any typographical errors, misinformation, misprints and shall be held totally harmless.
Realtor
JarrodGaylis
Call Jarrod today to schedule a private showing.
* Listings on this website come from the FMLS IDX Compilation and may be held by brokerage firms other than the owner of this website. The listing brokerage is identified in any listing details. Information is deemed reliable but is not guaranteed. If you believe any FMLS listing contains material that infringes your copyrighted work please click here to review our DMCA policy and learn how to submit a takedown request.© 2024 FMLS.