- Properties
- Meet our team
-
Communities
- Fort Lauderdale
- Miami
- Boca Raton and Delray Beach
- Golden Beach: A Secluded Coastal Gem with Unmatched Luxury
- The Palm Beaches
- Commercial Real Estate
- Croissant Park
- Tarpon River
- Rio Vista
- Las Olas Isles
- Victoria Park
- Riverside Park
- Sailboat Bend
- Idlewyld
- Harbour Inlet and Harbour Isles
- Edgewood
- River Oaks
- Coral Ridge
- Market Report
- Home Value
Detached, OneStory
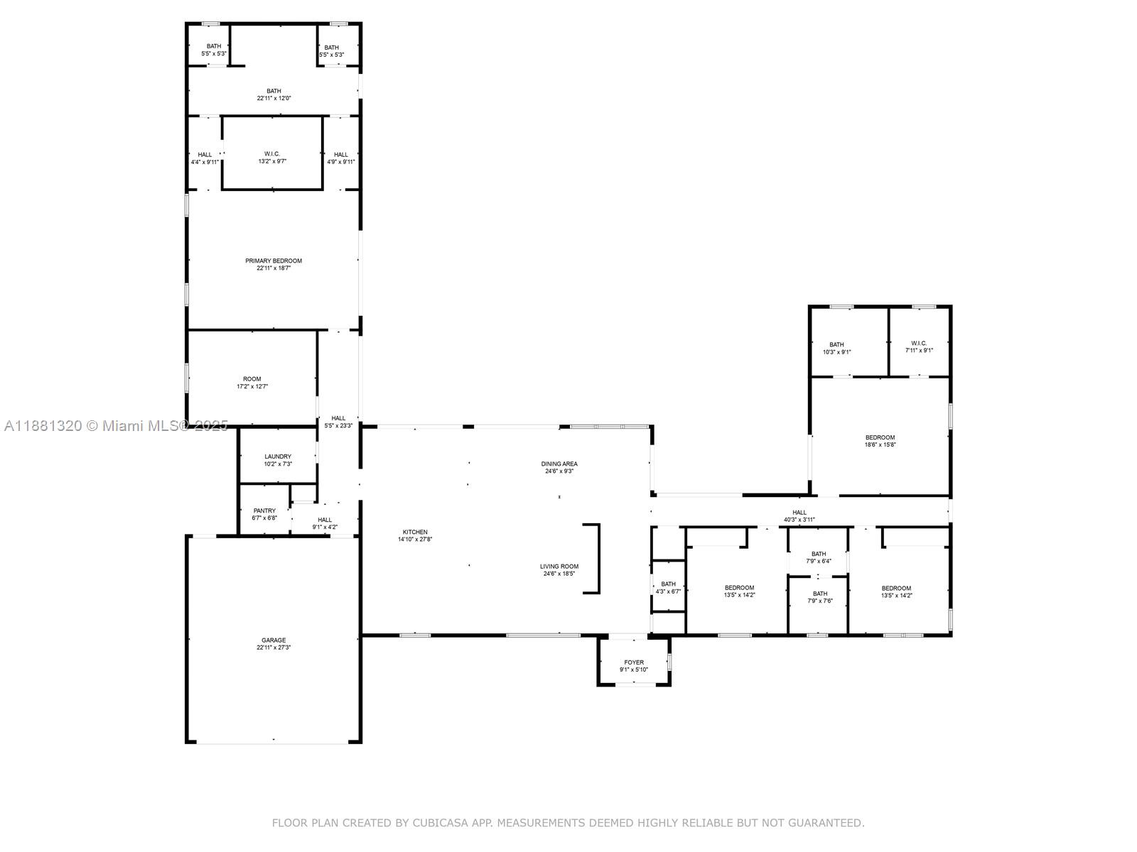
7505 SW 141st St
Palmetto Bay , FL 33158
MLS#: A11881320
$2,600,000
Property
Beds
5
Full Baths
3
1/2 Baths
1
Year Built
1961
Sq.Footage
4,273
Stunning 5 bdrm/3.5 bath completely remodeled home w/ large addition in late 2021, located in N. Palmetto Bay. Open concept living area, dining rm, chef’s kitchen w/ quartz counters, modern yet warm wood cabinetry, eat-in snack bar, walk-in pantry, all overlooking beautiful views of the backyard. Grand primary suite feat. expansive walk- in closet, luxurious bath w/ wet rm, marble vanity. Ample sized guest rms; one en-suite & jack & jill style bdrms. Indoor laundry rm, mud rm. Smart home w/ surround sound, lighting, security. New roof, PVC plumbing, impact windows/doors. Sprawling, oversized, fenced backyard w/ pool, covered patio & fantastic summer kitchen. 2 car garage, architectural paver driveway & space to park a boat on the side. Near the best schools, Falls shopping, restaurants.
Features & Amenities
Interior
-
Other Interior Features
Breakfast Bar, Built-in Features, Eat-in Kitchen, Pantry, Walk-In Closet(s), Master Downstairs
-
Total Bedrooms
5
-
Bathrooms
3
-
1/2 Bathrooms
1
-
Cooling YN
YES
-
Cooling
Central Air, Ceiling Fan(s), Electric
-
Heating YN
YES
-
Heating
Central, Electric
-
Pet friendly
Yes
Exterior
-
Garage
Yes
-
Garage spaces
2
-
Construction Materials
Block
-
Other Exterior Features
Barbecue, Outdoor Grill
-
Parking
Attached, Circular Driveway, Driveway, Garage, Paver Block
-
Patio and Porch Features
Patio
-
Pool
Yes
-
Pool Features
In Ground
-
Waterfront YN
NO
-
View
Pool
Area & Lot
-
Property Type
Residential
-
Property Sub Type
Single Family Residence
-
Architectural Style
Detached, OneStory
Price
-
Sales Price
$2,600,000
-
Tax Amount
17005.0
-
Zoning
2100
-
Sq. Footage
4, 273
-
Price/SqFt
$608
HOA
-
Association
No
School District
-
Elementary School
Howard Drive
-
Middle School
Palmetto
-
High School
Miami Palmetto
Property Features
-
Stories
1
-
Senior Community YN
NO
-
Sewer
Septic Tank
-
Water Source
Public
Schedule a Showing
Showing scheduled successfully.
Mortgage calculator
Estimate your monthly mortgage payment, including the principal and interest, property taxes, and HOA. Adjust the values to generate a more accurate rate.
Your payment
Principal and Interest:
$
Property taxes:
$
HOA fees:
$
Total loan payment:
$
Total interest amount:
$
Location
County
Miami-Dade
Elementary School
Howard Drive
Middle School
Palmetto
High School
Miami Palmetto
Listing Courtesy of Drew Kern , BHHS EWM Realty
RealHub Information is provided exclusively for consumers' personal, non-commercial use, and it may not be used for any purpose other than to identify prospective properties consumers may be interested in purchasing. All information deemed reliable but not guaranteed and should be independently verified. All properties are subject to prior sale, change or withdrawal. RealHub website owner shall not be responsible for any typographical errors, misinformation, misprints and shall be held totally harmless.
Realtor
JarrodGaylis
Call Jarrod today to schedule a private showing.
* Listings on this website come from the FMLS IDX Compilation and may be held by brokerage firms other than the owner of this website. The listing brokerage is identified in any listing details. Information is deemed reliable but is not guaranteed. If you believe any FMLS listing contains material that infringes your copyrighted work please click here to review our DMCA policy and learn how to submit a takedown request.© 2024 FMLS.