- Properties
- Meet our agents
-
Communities
- Fort Lauderdale
- Miami
- Boca Raton and Delray Beach
- Golden Beach: A Secluded Coastal Gem with Unmatched Luxury
- The Palm Beaches
- Commercial Real Estate
- Croissant Park
- Tarpon River
- Rio Vista
- Las Olas Isles
- Victoria Park
- Riverside Park
- Sailboat Bend
- Idlewyld
- Harbour Inlet and Harbour Isles
- Edgewood
- River Oaks
- Coral Ridge
- Market Report
- Home Value
Property
Beds
2
Full Baths
2
1/2 Baths
None
Year Built
1969
Sq.Footage
1,421
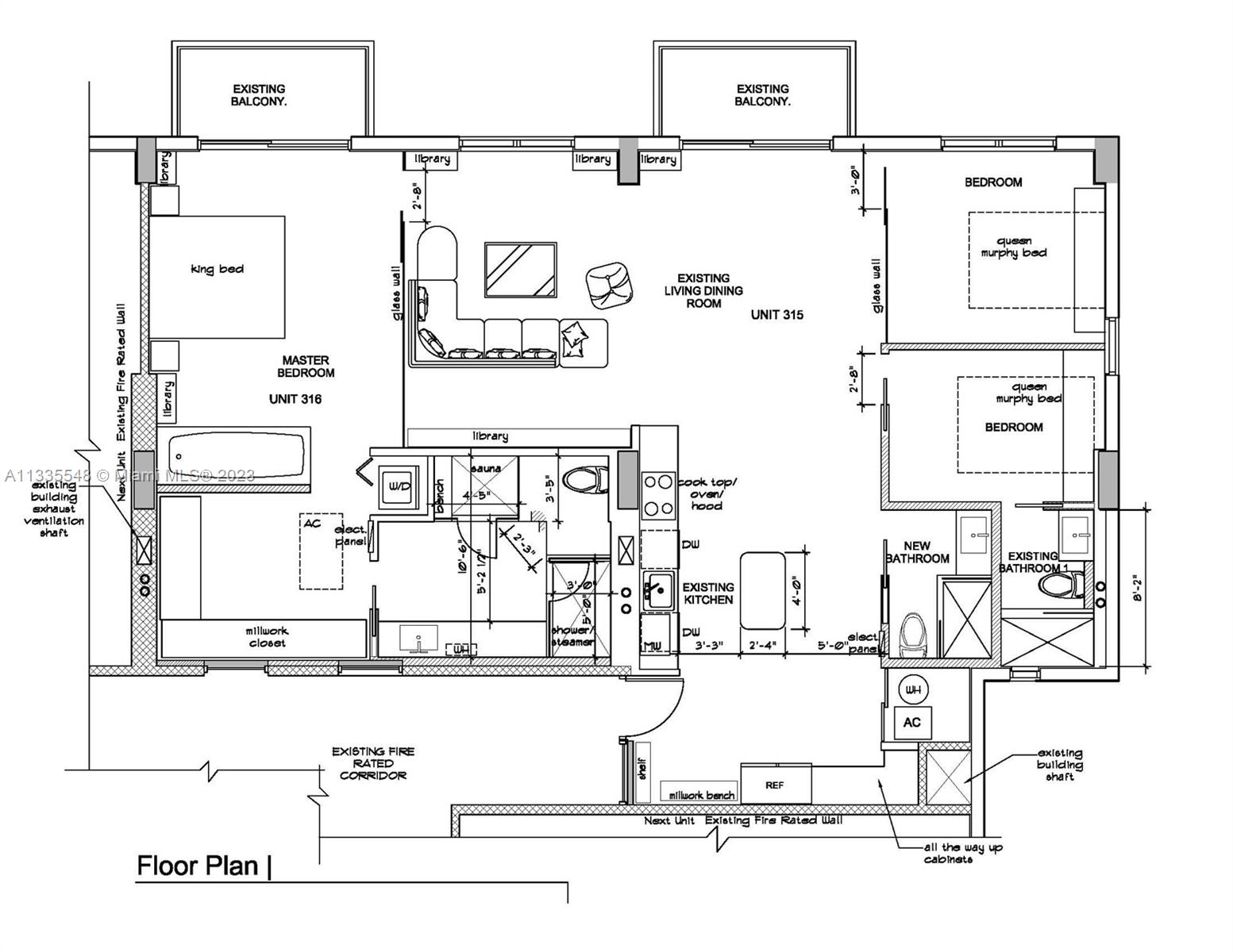
Direct Oceanfront: over 1400 sf corner unit with 2 balconies and a parking space. Originally 2 units side by side- ready for renovation w/renderings and drawings in place. Rarely available in desirable South of Fifth Street oceanfront building with heated pool, oceanfront gym, & complimentary beach service. This is the premier spot in the building: Southeast corner with both units facing directly east & incredible unobstructed ocean views from every room. The units already have the title joined and beautiful plans have been designed creating a one of a kind 3 bedroom 3 bathroom with ingenious glass wall divisions to bring the ocean in while retaining privacy. Drawings & estimates are available for your review-also happy to connect you to GC w/proposal who has completed many in building.
Features & Amenities
Interior
-
Other Interior Features
Master Downstairs
-
Total Bedrooms
2
-
Bathrooms
2
-
Cooling YN
YES
-
Cooling
Central Air
-
Heating YN
YES
-
Heating
Central
-
Pet friendly
No
Exterior
-
Garage
Yes
-
Garage spaces
1
-
Construction Materials
Block
-
Other Exterior Features
Balcony
-
Parking
Assigned, Attached, Garage
-
Pool
Yes
-
Pool Features
Association
-
Waterfront YN
YES
-
View
Ocean
Area & Lot
-
Lot Features
Waterfront
-
Property Type
Residential
-
Property Sub Type
Condominium
-
Architectural Style
HighRise
Price
-
Sales Price
$1,450,000
-
Tax Amount
$9,336
-
Sq. Footage
1, 421
-
Price/SqFt
$1,020
HOA
-
Association
Yes
-
Association Fee
$1,076
-
Association Fee Frequency
Monthly
-
Association Fee Includes
N/A
School District
-
Elementary School
South Pointe
-
Middle School
N/A
-
High School
N/A
Property Features
-
Stories
11
-
Association Amenities
Fitness Center, Laundry, Other, Pool, Trash, Management
-
Ownership
Other Ownership
-
Senior Community YN
NO
Schedule a Showing
Showing scheduled successfully.
Mortgage calculator
Estimate your monthly mortgage payment, including the principal and interest, property taxes, and HOA. Adjust the values to generate a more accurate rate.
Your payment
Principal and Interest:
$
Property taxes:
$
HOA fees:
$
Total loan payment:
$
Total interest amount:
$
Location
County
Miami-Dade
Elementary School
South Pointe
Middle School
High School
Listing Courtesy of Danell Van Orden , The Keyes Company
RealHub Information is provided exclusively for consumers' personal, non-commercial use, and it may not be used for any purpose other than to identify prospective properties consumers may be interested in purchasing. All information deemed reliable but not guaranteed and should be independently verified. All properties are subject to prior sale, change or withdrawal. RealHub website owner shall not be responsible for any typographical errors, misinformation, misprints and shall be held totally harmless.
Realtor
Jarrod Gaylis
Call Jarrod today to schedule a private showing.
* Listings on this website come from the FMLS IDX Compilation and may be held by brokerage firms other than the owner of this website. The listing brokerage is identified in any listing details. Information is deemed reliable but is not guaranteed. If you believe any FMLS listing contains material that infringes your copyrighted work please click here to review our DMCA policy and learn how to submit a takedown request.© 2024 FMLS.