Features & Amenities

Interior

  • Other Interior Features

    Wet Bar, Breakfast Bar, Bidet, Eat-in Kitchen, High Ceilings, Kitchen Island, Other, Pantry, Master Downstairs

  • Total Bedrooms

    8

  • Bathrooms

    8

  • Cooling YN

    YES

  • Cooling

    Central Air, Electric

  • Fireplace YN

    YES

  • Heating YN

    YES

  • Heating

    Electric

  • Pet friendly

    N/A

Exterior

  • Garage

    Yes

  • Garage spaces

    3

  • Construction Materials

    Block

  • Other Exterior Features

    Balcony, Lighting, Outdoor Grill

  • Parking

    Attached, Circular Driveway, Driveway, Garage, Golf Cart Garage, Guest, Other, Paver Block, Garage Door Opener

  • Patio and Porch Features

    Patio, Porch

  • Pool

    Yes

  • Pool Features

    Fenced, Heated, In Ground, Other, Pool/Spa Combo

  • Waterfront YN

    NO

  • View

    Pool

Area & Lot

  • Property Type

    Residential

  • Property Sub Type

    Single Family Residence

  • Architectural Style

    TwoStory

Price

  • Sales Price

    $7,200,000

  • Tax Amount

    $40,204

  • Zoning

    2300

  • Sq. Footage

    9, 237

  • Price/SqFt

    $779

HOA

  • Association

    No

School District

  • Elementary School

    Pinecrest

  • Middle School

    Palmetto

  • High School

    Miami Palmetto

Property Features

  • Stories

    2

  • Accessibility Features

    Accessible Entrance, Accessible Elevator Installed, Accessible Doors

  • Senior Community YN

    NO

  • Sewer

    Public Sewer, Septic Tank

  • Water Source

    Private, Public, Well

Schedule a Showing

Showing scheduled successfully.

<
>
IN PERSON
VIA CHAT

What is 3 + 4 ?


Change time

Mortgage calculator

Estimate your monthly mortgage payment, including the principal and interest, property taxes, and HOA. Adjust the values to generate a more accurate rate.

Your payment

Principal and Interest:

$

Property taxes:

$

HOA fees:

$

Total loan payment:

$

Total interest amount:

$

Location

County

Miami-Dade

Elementary School

Pinecrest

Middle School

Palmetto

High School

Miami Palmetto

Listing Courtesy of Eddy Martinez , Avanti Way Realty LLC

RealHub Information is provided exclusively for consumers' personal, non-commercial use, and it may not be used for any purpose other than to identify prospective properties consumers may be interested in purchasing. All information deemed reliable but not guaranteed and should be independently verified. All properties are subject to prior sale, change or withdrawal. RealHub website owner shall not be responsible for any typographical errors, misinformation, misprints and shall be held totally harmless.

Agent David  Jean-Louis

AGENT

David Jean-Louis

Call David today to schedule a private showing.


* Listings on this website come from the FMLS IDX Compilation and may be held by brokerage firms other than the owner of this website. The listing brokerage is identified in any listing details. Information is deemed reliable but is not guaranteed. If you believe any FMLS listing contains material that infringes your copyrighted work please click here to review our DMCA policy and learn how to submit a takedown request.© 2024 FMLS.
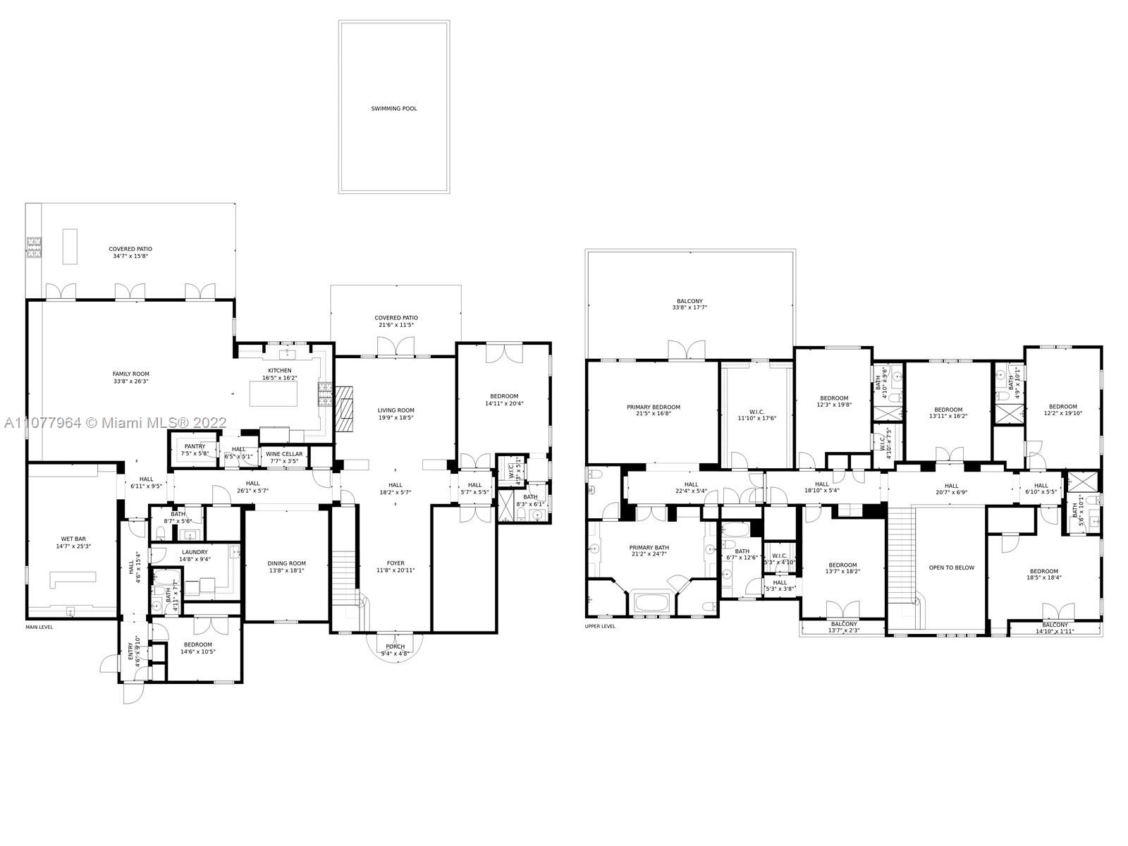
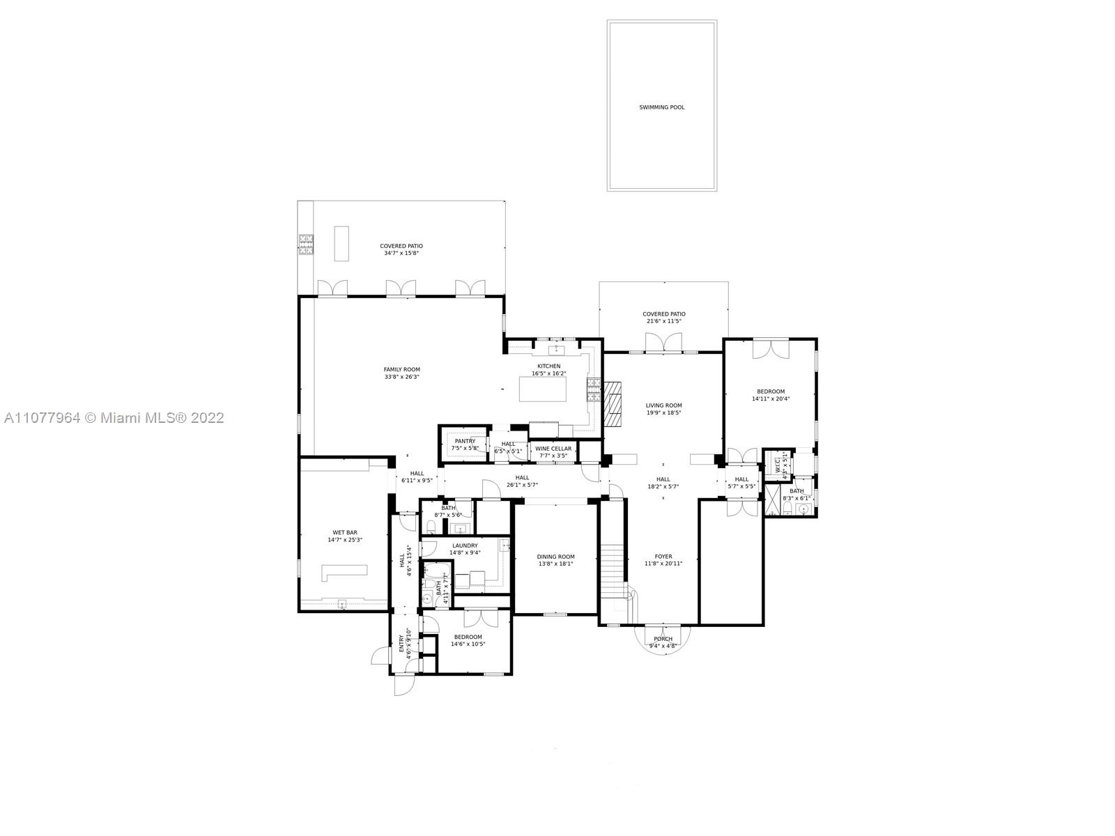
Enchanting custom built 1 acre estate in Pinecrest. The elegant grand foyer leads to a beautiful formal living room. The extensive living areas are perfect for hosting and the stunning kitchen includes Wolf brand double oven gas range with 8 burners, Miele appliances, floor to ceiling cabinetry, 1,000 bottle glass enclosed wine cellar, and a breakfast bar area. The master bedroom suite offers a welcoming sitting area, walk-in closets, spa bath with whirlpool tub and shower, and a private terrace overlooking the estate. The property also features a covered terrace with a summer kitchen, custom pool, & guest house. Additional features:  elevator, staff quarters, office, impact windows/doors, gate, and 3 car garage.  By Appointment Only.

12850 SW 60th Ave

Message successfully sent.

What would you like to know?

What is 3 + 4 ?

Related Properties

Discover a rare opportunity in Pinecrest with this beautifully redone one-story residence plus a vacant lot next door, offering exceptional flexibility, privacy, and long-term value.The main home offers an open layout designed for comfortable everyday living and effortless entertaining. Impact windows throughout provide peace of mind, energy efficiency, and abundant natural light. Clean lines, modern finishes, and a seamless flow between living spaces make this home both stylish and functional.Set on a spacious property, the inclusion of the adjacent vacant lot opens the door to endless possibilities. Whether you’re seeking room to grow or a strategic asset in one of Miami-Dade’s most desirable neighborhoods.The City of Pinecrest is known for its tree-lined streets, top-rated schools, and convenient access to shopping, dining, parks, and major roadways.
#A11972918

Pinecrest

12950 SW 67th Ave

4 Beds

4 Baths

2,784 Sq.Ft.

$6,000,000

MLS#: A11972918

Mediterranean estate in prestigious Pinecrest, gracefully set on a 39,204 sq ft lot. This distinguished 5-bedroom, 5-bath residence with 2 half baths welcomes you with a grand foyer and soaring volume ceilings that create an immediate sense of scale and light. Elegant formal and casual living spaces are thoughtfully designed for refined entertaining. The gourmet kitchen showcases custom cabinetry and a butler’s pantry. A richly appointed club room with bar, private library or office, wine storage, elevator, and summer kitchen overlooking the expansive grounds complete this rare offering of timeless sophistication and elevated living.
#A11952851

Pinecrest

6025 SW 108th St

5 Beds

6 Baths

8,754 Sq.Ft.

$6,850,000

MLS#: A11952851

Mediterranean masterpiece on secluded Killian Park Rd in the heart of Pinecrest. This nearly 11,000 total SF estate sits on almost an acre of lush, private grounds and offers the ideal layout for everyday living and effortless entertaining. Behind a gated entry, discover soaring ceilings and walls of windows that flood the home with natural light and showcase tranquil garden views from nearly every room. The gourmet chef’s kitchen anchors multiple entertaining spaces, while all six bedrooms are en-suite, complemented by a private office and an upstairs loft. The expansive ~1,200 SF primary suite features dual walk-in closets, spa-like bath with double shower, wet bar, and private terrace. Elevator access and a three-car indoor garage provide ultimate convenience. Outdoors, enjoy a true backyard oasis with a massive pool surrounded by mature oak, avocado, mango trees, and manicured hedges—perfect for entertaining or quiet family enjoyment. Additional features include complete impact glass windows, smart-home Savant automation, fireplace, and meticulous craftsmanship throughout. Ideally located within a few miles of top-rated schools (Gulliver, Pinecrest, Palmetto, etc.) and fine dining, shopping, and cultural attractions, this elegant estate seamlessly blends luxury, comfort, and privacy—an exceptional place to call home.
#A11963239

Pinecrest

11111 Killian Park Rd

6 Beds

6 Baths

8,646 Sq.Ft.

$6,990,000

MLS#: A11963239

Located in the heart of North Pinecrest and just minutes from the area’s top-rated public and private schools, this exceptional estate offers 11,002 total SF on a sprawling 38,768 SF lot, delivering 7 BD and 7.5 BA with refined architectural elegance throughout. A grand arched wood and iron entry opens to soaring ceilings, marble floors, tray and coffered ceilings, crown moldings, and designer lighting. The open-concept kitchen and family room showcase Taj Mahal quartzite countertops, custom cabinetry, center island, walk-in and butler’s pantries, and premium Sub-Zero, Wolf, Miele, and ILVE appliances. Multiple living areas include formal dining, dual family rooms, wet bar with Sub-Zero wine fridge, oversized playroom with kitchen and bath (included in bedroom count), gym, staff quarters, and elevator access. Outdoors, enjoy lush landscaping, covered terraces, open balconies, a courtyard fountain, summer kitchen with Hestan grill and pizza oven, marble patios, and resort-style entertaining spaces. Additional highlights include a 6-car air-conditioned garage with EV charger, whole-house generator, Control4 smart system, central vacuum, dual laundry rooms, and a luxurious primary suite with private balcony, wet bar, spa bath, dual walk-in closets, whirlpool tub, and marble finishes—offering privacy, prestige, and premier Pinecrest living.
#A11953437

Pinecrest

5865 SW 96th St

7 Beds

7 Baths

7,811 Sq.Ft.

$8,200,000

MLS#: A11953437

Welcome to an extraordinary modern Mediterranean estate nestled in the heart of Pinecrest, Florida, where timeless architecture and contemporary luxury converge in perfect harmony. Built in 2004, this exquisite estate boasts 8 bedrooms and 8.5 bathrooms, thoughtfully positioned on a prime corner lot within a tranquil cul-de-sac. The expansive backyard, adorned with fruit trees, offers ample space to create a tennis court or even a half basketball court, perfect for outdoor enthusiasts. As you step inside, you're greeted by stunning marble floors that flow seamlessly throughout the home, illuminated by the dazzling glow of Baccarat chandeliers as you enter. This property promises an unparalleled lifestyle of elegance and sophistication. Join me for an exclusive tour!
#A11962310

Pinecrest

9076 SW 59th Ct

8 Beds

8 Baths

8,277 Sq.Ft.

$7,600,000

MLS#: A11962310

Price reduced
2026 NEW CONSTRUCTION- Southern Colonial estate in North Pinecrest featuring 7 bedrooms, 7.5 bathrooms, and a three-car garage. This elegant residence blends traditional architecture with contemporary edge and finishes, offering soaring ceilings, porcelain floors, custom cabinetry, and high-end fixtures throughout. Gourmet kitchen with Taj Mahal Quartzite ideal for entertaining family and friends. Outdoor living includes a lap pool and BBQ area with expansive covered terrace. Located in a family-friendly neighborhood within one of Pinecrest’s most desirable pockets, walking distance to top-rated schools such as St Thomas, Betham and Gulliver Schools. With just 1-block from the famous Wayside Market and Mondi Coffee, make this you perfect family dream home!!!
Adjusted square footage: 6,538, Living Square Footage: 6,504 Total Square footage: 7,671
#A11949841

Pinecrest

5940 SW 100th Ter

7 Beds

7 Baths

N/A

$6,950,000

MLS#: A11949841

Price reduced
One story modern estate built in 2020 with refined finishes and a clean architectural presence, offering a bright open floorplan framed by oversized windows and doors throughout. The Italian kitchen is designed for both function and entertaining, featuring sleek cabinetry, quartz countertops, and Wolf and SubZero appliances, flowing seamlessly into the family room with views of the outdoor living areas. The home offers six spacious en suite bedrooms with finished closets, a den or office, and a dedicated wine room. The primary suite is a private retreat with a spa inspired bath featuring double vanities, separate water closets, a floating soaking tub, and an expansive shower. Porcelain floors, LED lighting, high ceilings, a large covered terrace, summer kitchen, and two car garage complete the interior. The backyard delivers a true resort experience with expansive green grounds, infinity pool, hot tub, sauna, cold plunge, fire pit seating, and multiple outdoor lounge and dining areas. Ideally located near premier Pinecrest schools.
#A11948169

Pinecrest

6175 SW 128th St

6 Beds

7 Baths

6,530 Sq.Ft.

$6,795,000

MLS#: A11948169

Elegant, newly refreshed Hamptons-inspired Northeast Pinecrest estate offering 7,900+ sq ft on a 0.98-acre street-to-street lot. Located near South Florida’s top public and private schools, the home features 5 en-suite bedrooms, 8 baths, and 3 additional rooms currently used as a gym, theater, and studio. Soaring ceilings and impact glass fill the interiors with natural light, and the chef’s kitchen with a butler’s pantry is ideal for entertaining. The primary suite includes a spa bath and expansive custom closet. Outdoors enjoy a heated saltwater pool, pergola, BBQ gazebo with cabana bath, and lush landscaping. The property is gated and supported by neighborhood patrol, includes an elevator, generator, and abundant storage closets.
#A11939919

Pinecrest

10001 SW 60th Ct

5 Beds

6 Baths

7,923 Sq.Ft.

$6,790,000

MLS#: A11939919

Modern spacious house, fully upgraded in the calm/safe area of Pincrest. 3 mins away from the main roads makes it ideally accessible. Behind the 2 electric gates, a spacious gateway welcomes you. Two under AC covered parking spaces & +6 cars can easily be parked. Once you cross through the main door, heigh ceilings with plenty of windows that let the light come in throughout the residence. Modern but cosy living room, formal dining table, TV room section with informal dining area, spacious kitchen with a cooking island next to the service quarters & laundry room. Before heading to the rooms section, a cristal floor-to-ceiling wine cellar will call your attention. Principal bedroom is very spacios with windows throughout, extensive walk-in closet next to the gorgeous master bathroom which offers doble sinks, two water closets, grand rain-shower, separate bathtub with a view & more. Five more bedrooms beautifully finished (each with its own bathroom and closet) will complete the intererior of the house. Connecting to the outdoor space, a deck with a large living room facing the pool, jacuzzi & fountain with a tennis court at the back. On a side a bbq grill and outdoor-kitchen area with a ceiling will complement a perfect space for you to enjoy outside any day. Top quality finishes, european appliances & bathrooms all selected carefully by a designer makes this property unique. OFFERED TURNKEY - FULLY FURNISHED FOR EXTRA $550K with roche bobois & european-design furniture.
#A11939382

Pinecrest

7218 SW 102nd St

7 Beds

8 Baths

6,541 Sq.Ft.

$7,800,000

MLS#: A11939382

This exceptional Contemporary Modern Farmhouse is located in the heart of Pinecrest on a private dead-end street with tranquil canal views on two sides. Offering approximately 6,389 square feet, the residence showcases natural white oak flooring and a thoughtfully designed indoor-outdoor living concept. The home features five bedrooms, a dedicated office, and an expansive upper-level flex space ideal for a gym, media room, or additional living area. Includes 6.5 bathrooms and a two-car garage with lift capacity. A truly unique and private retreat.
#A11932461

Pinecrest

11001 SW 74th Ave

4 Beds

4 Baths

N/A

$6,990,000

MLS#: A11932461

 - property

Send a message

Message successfully sent.

Your message

What is 3 + 4 ?

Reason for contacting?

Sign Out

Virtual Assistant

Would you like to take the next step with this property? We can help you schedule a showing or virtual tour, or send you more details.

Yes, I would like more information.

Thank You for Your Reply, One of Our Agents will contact you as soon as possible

No, maybe later.

Thank you, you can always contact me via email, phone number or through the contact form.

Realhub AI

Lucy - Your AI-Powered Realtor

Update Your Temporary Password

Personalize your search

Enter your email and we'll notify you immediately when new listings match what you're looking for.

or enter email address

Already have an account ? Login here

Continue your home search

Already have an account ? Login here

We use cookies

We use cookies primarily for analytics to enhance your experience. By accepting, you agree to our use of these cookies. You can manage your preferences or learn more about our cookies policy.